RESIDENTIAL STEEL FRAMING
Our Steel-Frame Homes

REPco has designed and supplied homes ranging from 800 to 68,000 square feet in size. All of our steel-frame homes are pre-engineered and supplied according to the codes associated with the area in which they are to be built.

If engineering seals are required, they will be supplied as required. If you find it necessary, one of our engineers will interface with your code enforcement officials. Our design staff can start with a sketch or a full architectural wood plan. Then create the home of your or your clients dreams. In many cases, we will not have to redo the architectural plans if they are complete. We will simply offset the foundation walls outward by the difference in the wall thickness. Our standard wall thickness is 8 3/8, including thermal breaks, as compared to the typical 3 ½” wood or steel stud wall. Once the architectural plan is complete, we will complete a structural analysis and then design the foundation layout, floor systems, walls, and roof. All of these plans are fully detailed to allow a less experienced crew to frame the home. All major components are labeled to simplify assembly. Rough openings for windows and doors are designed to allow maximum flexibility for your choices.
Roof Pitch
Available from virtually flat to 24/12 or higher, we have maximum flexibility.
High-pitched roofs increase building costs; however, the added cubic footage creates maximum clearance and extra space/storage, which is well worth the cost to most homeowners. In addition, your home will reduce heat buildup. In regions with heavy rain or snow, the high-pitched roof will reduce buildup and potential leaks.
Low-pitched roofs have advantages and are more common in hotter climates. The cost of construction will decrease simply due to fewer materials. The low pitch also reduces the size of the structure, therefore making it efficient to heat or cool.
Finishes
You have your choice of exterior and interior finishes. The exterior walls of our steel frame homes have been finished with brick, stucco, clapboard siding, stone, and steel.
Roofs have been finished with shingles, tiles, steel, and even concrete. Whatever you choose, it will work with the REPco system. Garages: Single- and multi-story garages are available, attached or detached, to match the home that you choose. From one car to as many as you need, with or without workshop areas, the choice is yours. ICF Systems-Repco has supplied Insulated Concrete Form builders with interior walls, floor systems, and roof systems specifically designed for ICF exterior walls.
REPco can do the full design for you with any of the ICF systems.
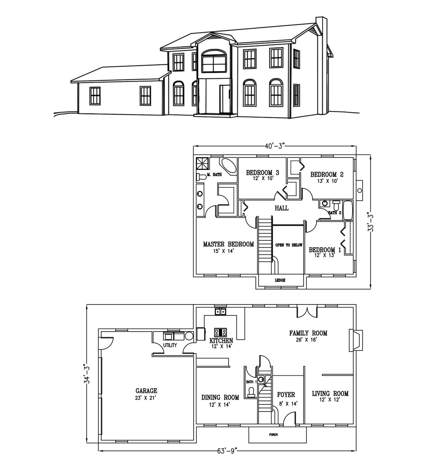
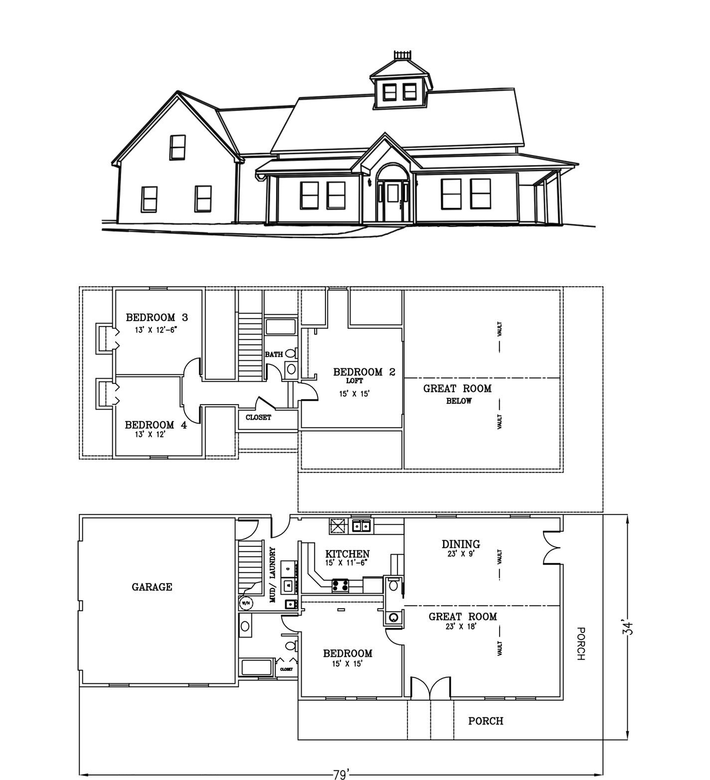
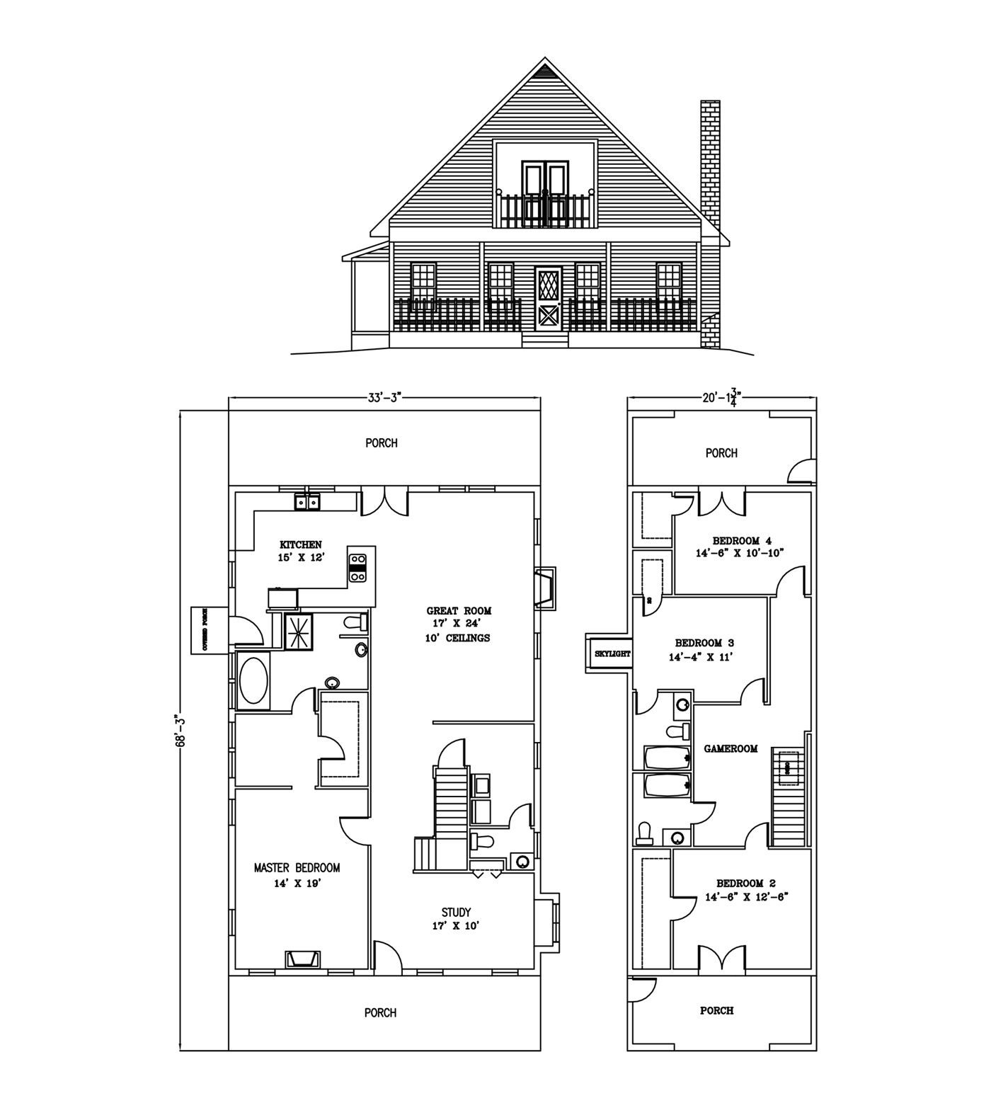
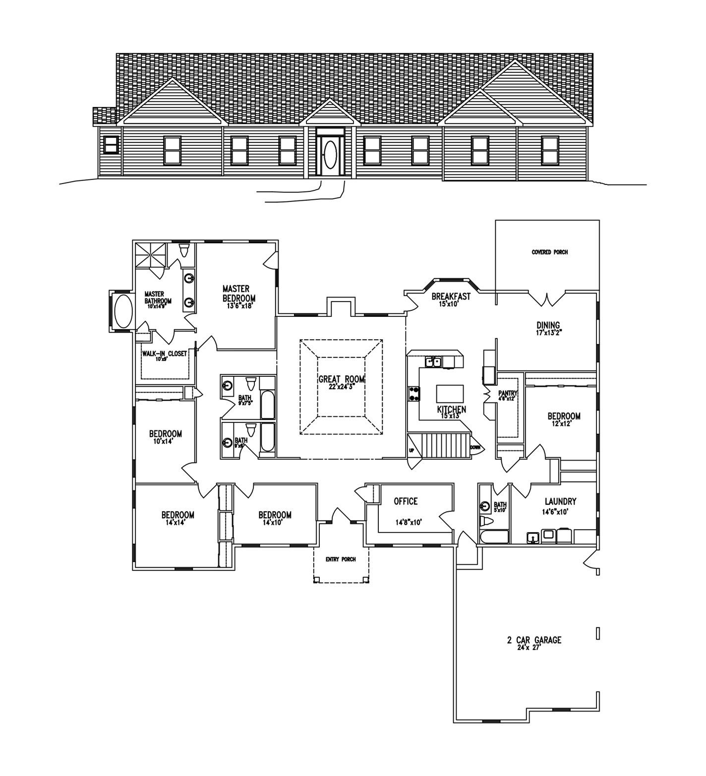
We have produced hundreds of different homes to date, many of which are available as completed designs, ready for production. If one of them suits your needs, you will save on design costs.
Home Designs
We hope that our plans are a helpful resource for your interest in residential and/or commercial steel frame homes and buildings. Since 1985, we have been proud to lead the industry in this dynamic and innovative field of construction.
Repco specializes in steel frame homes and commercial steel building kits throughout the world. Our steel frame homes feature incredible energy efficiency and are wind and seismic resistant thanks to their innovative wall and roof system design. These features make them structurally superior to other framing methods, particularly in coastal and earthquake-prone areas.


















































